Înregistrare
Intră în cont
Acasă
Termeni şi condiţii
Condiţii de livrare
Despre noi
Cum cumpăr
Contact
Confidențialitate
COSUL MEU
0
Facebook
Google+
Înapoi la rezultatele căutării
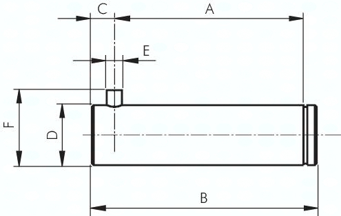
ISO 15552-Bolzen 125 mm ( sphärisch), 1.4401
FFQ 125 ES
La comandă!
Lieferumfang: Bolzen komplett mit Klemmring
460,68 RON
Prețul conține TVA!
Documente ataşate
Katalogseite Pneumatik Atlas 8 (Seite 761_n)
Genuine part of:
Va rugam asteptati